Nhằm đáp ứng yêu cầu khách hàng, ngôi nhà được thiết kế sao cho có không gian mở nhất có thể nhưng vẫn phải đảm bảo sự riêng tư.

Phần khung kết cấu chính ngôi nhà làm bằng kim loại, kết hợp với đó là các bức tường cùng cửa ra vào bằng kính lớn được lắp đặt ở bốn mặt ngôi nhà, để ánh sáng tự nhiên có thể tràn vào nhà và cung cấp view nhìn ra cánh rừng xung quanh.

Để đảm bảo và hạn chế sự tác động đến cảnh quan môi trường, ngôi nhà được thiết kế theo kiểu nhà sàn với một bên được nâng cao hơn sao cho phù hợp với địa hình khu vực, đồng thời kiển thiết kế này giúp ngôi nhà luôn được khô ráo, tránh xa khỏi nền rừng ẩm ướt.

Nội thất bên trong được làm bằng gỗ thông và được sơn màu trắng, khi kết hợp với các bức tường kính xung quanh đem lại cho người cư ngụ cảm giác về một không gian mở hoàn toàn.
Tương phản với trần nhà màu trắng, phần sàn nhà bằng gỗ được trải thảm nhiều màu sắc, làm nổi bật lên khu vực sinh hoạt và ăn uống.

Bên cạnh khu vực ăn uống là nhà bếp với tủ treo tường và đồ nội thất có màu sáng. Các giếng trời được bố trí cung cấp ánh sáng tự nhiên cho ngôi nhà.

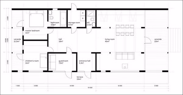
Một đường hành lang dẫn đến phòng ngủ chính, phòng ngủ trẻ em và phòng tắm. Nội thất trong nhà khá đơn giản được bài trí gọn gàng nhằm tăng thêm không gian sinh hoạt cho gia chủ.
