Những gợi ý chi tiết sau đây sẽ cho bạn hình dung cụ thể từ chi phí nguyên vật liệu đến các mẫu để xây nhà cấp 4 khoảng 150 triệu 2019 đã được thi công trên thực tế và dự đoán sẽ "phá đảo" trong năm 2020 này.
1. Chi phí xây nhà cấp 4 khoảng 150 triệu năm 2019
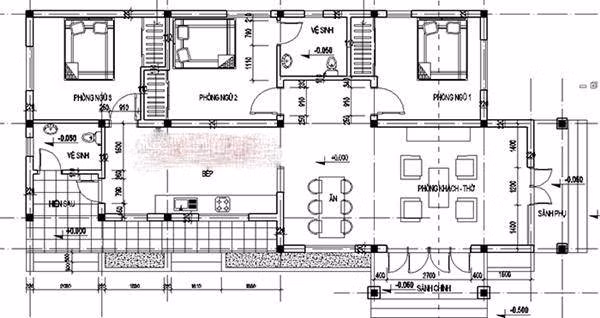
150 triệu tuy không phải số tiền lớn nhưng cũng đủ để bạn có thể xây dựng 1 căn nhà cấp 4 hoàn chỉnh với 2 phòng ngủ, 1 phòng khách và 1 nhà vệ sinh trong diện tích đất 80m2.
Mặt bằng nhà cấp 4 khoảng 150 triệu với diện tích 80 m2. (Ảnh minh họa).
Bạn có thể tham khảo phần hạch toán chi phí thi công sau:
- Chi phí xây thô và trát hoàn thiện: 80 m2 x 1,1 triệu = 88.000.000 đồng.
- Đá, cát, gạch và nguyên vật liệu khác: 13.000.000 đồng
- Phần lát nền và ốp vệ sinh, bếp: 100 m2 x 60.000 = 6.000.000 đồng.
- Chi phí làm cửa nhôm kính: 30 m2 x 360.000 = 10.800.000 đồng.
- Phí sơn tường nội, ngoại thất nhà: 80 m2 x 4 x 12.000 = 3.840.000 đồng.
- Thiết bị vệ sinh (1 phòng): 1 x 5 triệu = 5.000.000 đồng. (gồm có vòi sen, xí, bình nóng lạnh, gương, chậu rửa mặt).
- Thiết bị điện cơ bản dây, công tắc, ổ cắm, bóng đè:, hệ đèn chiếu sáng là 8.000.000 đồng.
- Đường ống nước: 4.000.000 đồng.
- Nhân công lắp đặt điện nước: 80 m2 x 250.000 = 20.000.000 đồng.
Tổng chi phí xây dựng: 157.640.000 đồng.

Mặt bằng nhà cấp 4 khoảng 150 triệu với mái tôn. (Ảnh minh họa).
Ngoài ra khi xây dựng còn có thể chênh lệch tùy vào giá thành của khu vực nơi bạn sống và sự chênh lệch giá cả thị trường của thiết bị, nguyên vật liệu xây dựng.
2. Các mẫu nhà cấp 4 khoảng 150 triệu

Với thiết kế diện tích khoảng 80m2, nhà cấp 4 khoảng 150 triệu là khả thi. (Ảnh minh họa).
Nhiều thiết kế nhà cấp 4 ở nông thôn có phong cách như Châu âu mà giá thành thi công chỉ khoảng 150 triệu.(Ảnh minh họa).
Nhà cấp 4 nhỏ đơn giản, hiện đại, giá thành rẻ được nhiều cặp vợ chồng trẻ lựa chọn xây dựng.(Ảnh minh họa).

Xây nhà cấp 4 khoảng 150 triệu vẫn có khoảng sân thoải mái sinh hoạt. (Ảnh minh họa).

Nhà cấp 4 có thể kết hợp bố trí một mảnh vườn bên cạnh tạo cảnh quan hài hòa. (Ảnh minh họa).

Nhiều thiết kế nhà cấp 4 sang chảnh chẳng kém gì những ngôi biệt thự thu nhỏ.(Ảnh minh họa).

Khuôn viên nhà cấp 4 với hàng rào tạo cảm giác chắc chắn. (Ảnh minh họa).

Xây nhà cấp 4 khoảng 150 triệu nên chọn phong cách xây dựng tối giản để tránh phát sinh chi phí. (Ảnh minh họa).

Nhà cấp 4 có mái hiên cách điệu vẫn là mẫu nhà được lựa chọn nhiều trong năm 2019. (Ảnh minh họa).

Thay thế tường gạch bằng nhiều cửa kính tạo không gian mở cho ngôi nhà của bạn. (Ảnh minh họa).

Với những gia đình chỉ có đủ diện tích đất để xây nhà thì nên thiết kế hợp lý để tận dụng được tối da không gian sống. (Ảnh minh họa).

Xây nhà cấp 4 khoảng 150 triệu nên chọn màu sơn đơn giản, sang trọng để vừa tiết kiệm chi phí vừa tạo cảm giác rộng rãi thoáng đạt cho căn nhà. (Ảnh minh họa).

Đường nét thiết kế đơn giản nhưng vẫn tạo điểm nhấn với mẫu nhà cấp 4 mái bằng. (Ảnh minh họa).

150 triệu là mức chi phí tối thiểu để xây dựng, tuy nhiên bạn có thể đầu tư thêm cho phần trang trí để căn nhà trở nên hoàn hảo hơn. (Ảnh minh họa).

Có rất nhiều mẫu nhà cấp 4 hiện đại, đẹp và lạ mắt đã được xây dựng với chi phí tối thiểu khoảng 150 triệu đồng. (Ảnh minh họa).

Nhà cấp 4 ở nông thôn dễ xây dựng hơn bởi có nhiều diện tích khuôn viên xung quanh. (Ảnh minh họa).

Một ngôi nhà nhỏ nhắn, xinh xắn cũng là không gian riêng tư được nhiều người độc thân yêu thích. (Ảnh minh họa).

Với người trẻ, để sở hữu diện tích đất và một phần kinh phí lớn để xây nhà là điều khó. Do đó hãy cố gắng tìm thiết kế phù hợp để xây nhà cấp 4 khoảng 150 triệu là đẹp. (Ảnh minh họa).