1. Mẫu nhà ống 2 tầng đẹp

Bản vẽ chi tiết cho mẫu nhà đẹp 2 tầng 5x20 dạng ống.
Kiến trúc nhà ống 2 tầng thỏa mãn được các tiêu chí hàng đầu khi chọn mua nhà như chi phí xây dựng và chăm sóc tiết kiệm, thiết kế đơn giản và diện tích cho phép 3 đến 4 người sinh sống.
Dù vậy, kiểu nhà này vẫn cho phép các biến tấu kiến trúc độc đáo, đầu tư thêm phần mặt tiền sang trọng, đẹp mắt là bạn đã có được ngôi nhà ước mơ cho gia đình nhỏ của mình.

Phòng ngủ thoáng rộng, ấm cúng.
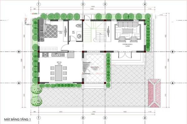
2. Mẫu nhà 2 tầng nông thôn đẹp

Một trong các mẫu nhà đẹp 2 tầng mái thái nông thôn cơ bản thường thấy.

Bản thiết kế tầng 1 nhà chữ L tham khảo.
Không chỉ ở các đô thị mà nhà 2 tầng cũng phù hợp với thị hiếu và nhu cầu của những cư dân ở các vùng nông thôn bởi diện tích rộng rãi và dễ thiết kế, thi công.
Với chi phí từ vài trăm triệu đồng, bạn hoàn toàn có thể thiết kế và xây dựng nhà 2 tầng tại nông thôn cho gia đình sinh hoạt tiện nghi, thoải mái.

Mẫu phòng khách hợp phong thủy với trường kỷ gỗ.
3. Mẫu nhà 2 tầng mái thái đẹp

Ví dụ cụ thể về một mẫu nhà 2 tầng giá rẻ là ngôi nhà 2 tầng mái thái 500 triệu này.

Sơ lược thiết kế tầng 1
.
Kiểu nhà mái thái có ưu điểm là không bao giờ bị lỗi mốt nhờ thiết kế riêng biệt và đa dạng của mái nhà, thêm điểm cộng về khả năng chống nóng cũng như chống thấm hiệu quả hơn hẳn mái bằng.
Hơn nữa, mái thái thường lợp ngói nên không gây tiếng ồn khó chịu như mái tôn. Một ngôi nhà đẹp 2 tầng mái thái không đòi hỏi thiết kế quá cầu kỳ lại đem đến không gian sống rộng rãi, thoáng mát.

Gợi ý mẫu phòng khách kiểu Scandinavian đẹp mắt.
4. Mẫu nhà 2 tầng hình vuông

Hình khối vuông vức của mặt đất thích hợp nhất với kiến trúc góc cạnh như thế này.

Bản thiết kế nhà phố đẹp 8x8m 2 tầng 1 lửng.
Đây là mẫu nhà 2 tầng tiết kiệm tối ưu bởi diện tích đất nền độc đáo của nó. Bạn không phải lo ngại căn nhà của mình không có đủ độ sâu vào trong bởi hình khối của căn nhà không hề ngăn bạn tận dụng triệt để không gian. Chỉ cần bố trí phòng ốc và nội thất hợp lí, ngôi nhà của bạn sẽ không có góc thừa nào cả.

Sở hữu giếng trời, tầng 1 vẫn lấy ánh sáng tự nhiên tốt.
5. Các mẫu nhà đẹp 2 t
Bên cạnh những mẫu nhà đã được giới thiệu, dưới đây là một số mẫu nhà 2 tầng theo xu hướng mới nhất 2018 để bạn tham khảo:
- Mẫu nhà 2 tầng chữ L

Điểm thu hút của mẫu nhà này là khoảng trống giữa hai phần nhà trong lòng chữ L rất tiện để làm đẹp hay thêm công năng cho ngôi nhà của bạn. Bạn có thể tận dụng làm sân vườn, trồng cây cảnh, sân vui chơi cho trẻ hay đơn giản là chỗ để xe ô tô tiện lợi.

Bản vẽ 3D chi tiết cùng nội thất cho nhà chữ L.

Dễ dàng có được không gian phòng khách lớn nhờ độ dài của nhà chữ L.
- Mẫu nhà 2 tầng 1 tum

Kiểu nhà này không chỉ nằm trong danh sách mẫu nhà ống 2 tầng đẹp 2017 đến nay mà cả các năm khác.

Nhà ống 2 tầng đơn giản sử dụng mái che trên tầng tum giúp giảm chi phí xây dựng và rút ngắn thời gian thời gian hoàn thiện.
Nhà 2 tầng 1 tum được lựa chọn xây dựng khá phổ biến ở cả nông thôn lẫn thành thị. Xây thêm tầng tum không đòi hỏi nhiều chi phí bằng một tầng nhà hoàn chỉnh mà vẫn cung cấp thêm không gian tiện nghi.
Bạn sẽ có một nơi để giặt giũ và phơi quần áo rộng rãi hay một “khoảng xanh” nho nhỏ với những chậu cảnh cho nhà mình thêm tươi mát.
- Mẫu nhà 2 tầng 3 phòng ngủ

Bạn có thể dùng gạch lát cùng các tông màu trầm sẽ giữ mặt ngoài ngôi nhà không bị xuống cấp vì mưa gió.

Tham khảo cách phân bổ phòng cho nhà 2 tầng 3 phòng ngủ.
Nhà 2 tầng với số lượng 3 phòng ngủ phù hợp với cả gia đình trẻ lẫn gia đình có nhiều thế hệ chung sống. Khi chia nhiều gian như vậy, diện tích của nhà 2 tầng trở nên có phần khiêm tốn và bí bách. Cách để khắc phục vấn đề này là thiết kế thêm ban công thoáng đãng.

Khu sinh hoạt chung của gia đình thoải mái, ấm áp với tông vàng - trắng.