Nhà ống cấp 4 là gì?
Nhà ống thường được bố trí ngoài cùng là phòng khách hoặc kinh doanh buôn bán, phía trong cùng bố trí phòng bếp, khu phụ, phòng ngủ thường đặt ở giữa.
Một số ưu, nhược điểm của nhà ống cấp 4
Ưu điểm:
- Thiết kế đơn giản, dễ dàng thi công, thi công nhanh chóng, sớm được đưa vào sử dụng.
- Tiết kiệm chi phí hơn so với các kiểu nhà biệt thự,...
- Phù hợp với những khu đất nhỏ bề ngang, dài chiều sâu
- Phù hợp với những gia đình có điều kiện kinh tế trung bình.

Nhà ống cấp 4 mang nhiều ưu điểm. (Ảnh minh họa).
Nhược điểm
- Nhà ống thường được xây san sát nhau nên thường khó tận dụng được ánh sáng tự nhiên.
- Nhà có dạng hình chữ nhật nên dễ hút gió, âm thanh thường cộng hưởng nên vọng và ồn
- Thiết kế đơn giản nên dễ có sự trùng lặp.
Tuy nhiên, nếu biết cách khắc phục những nhược điểm và tận dụng những ưu điểm trên thì việc xây dựng nhà ống cấp 4 đẹp không phải điều khó khăn.

Tuy nhiên cũng không tránh khỏi những nhược điểm trong xây dựng và thiết kế. (Ảnh minh họa).
Một số mẫu nhà ống cấp 4 đẹp có tiền phải xây ngay
Từ khuôn nhà ống cấp 4 đơn giản, chúng ta có thể sáng tạo ra nhiều những điểm nhấn khác nhau cho ngôi nhà sao cho phù hợp với thị hiếu của bản thân cũng như tận dụng được hết những ưu điểm của nhà ống cấp 4.
Một số mẫu nhà ống cấp 4 dưới đây sẽ là những lựa chọn đáng để bạn tham khảo:
1. Mẫu nhà ống cấp 4 mái tôn
Thay vì đổ mái bằng như những mẫu nhà ống cấp 4 hiện đại khác thì mẫu nhà ống cấp 4 mái tôn được thiết kế mái bằng các loại tôn như tôn song song, tôn sóng vuông, tôn sóng tròn…
Mẫu nhà cấp 4 mái tôn có thời gian thi công nhanh hơn rất nhiều so với mái bằng hay mái thái, đồng thời cũng có kinh phí đầu tư thấp nên khá được ưa chuộng ở nông thôn.

Mẫu nhà ống cấp 4 mái tôn giả ngói ngày càng được ưa chuộng.

Gia chủ có thể thoải mái lựa chọn màu sắc cho mái tôn từ đỏ đến xám.

Mẫu thiết kế này đem lại không gian thoải mái cho các gia đình.

Phù hợp với những khu đất nhỏ bề ngang, dài chiều sâu.
2. Nhà ống cấp 4 có gác lửng
Nhà cấp 4 có gác lửng hiện nay là thiết kế kiến trúc đơn giản, phổ biến ở khắp nơi, từ thành thị cho đến khu vực nông thôn bởi kiểu nhà này luôn đem đến cho không gian gia đình cảm giác tươi mới cùng mức chi phí đầu tư đặc biệt tiết kiệm.
Sự thay đổi và cách tân từ các thiết kế nhà cấp 4 truyền thống từ lâu kết hợp với các phong cách kiến trúc khác nhau tạo nên trường phái, khái niệm mới về thiết kế kiến trúc mẫu nhà cấp 4 có gác lửng vốn được nhiều người rất yêu thích.
Thậm chí, nhiều người còn đặt tên mẫu nhà này là nhà 1 trệt 1 lầu bởi sự đặc biệt của nó.

Nhà cấp 4 có gác lửng hiện nay là thiết kế kiến trúc đơn giản, phổ biến ở khắp nơi, từ thành thị đến nông thôn.

Bạn có linh động sử dụng chúng thành phòng ngủ hoặc phòng làm việc.

Mô hình nội thất bên trong mẫu nhà ống cấp 4.
3. Nhà ống cấp 4 có 3 phòng ngủ
Thay vì xây dựng những ngôi nhà cao tầng gây trở ngại cho người già và trẻ em trong việc đi lại, mẫu thiết kế nhà ống cấp 4 có 3 phòng ngủ sẽ là một lựa chọn sáng suốt hơn cả.
Không cần leo cầu thang mà vẫn đủ không gian sinh hoạt thoải mái là đặc điểm nổi bật của mẫu nhà 3 phòng ngủ này.
Việc xây dựng nhà ống cấp 4 3 phòng ngủ được các kiến trúc sư tối ưu hóa chi phí nên những hộ gia đình đông người nhưng hạn hẹp về khoản tài chính hoàn toàn có thể yên tâm sở hữu 1 căn nhà vừa rộng rãi lại đảm bảo yếu tố thẩm mỹ.

Lựa chọn mẫu thiết kế nhà ống cấp 4 có 3 phòng ngủ cũng là một lựa chọn sáng suốt cho gia đình nhiều thế hệ.

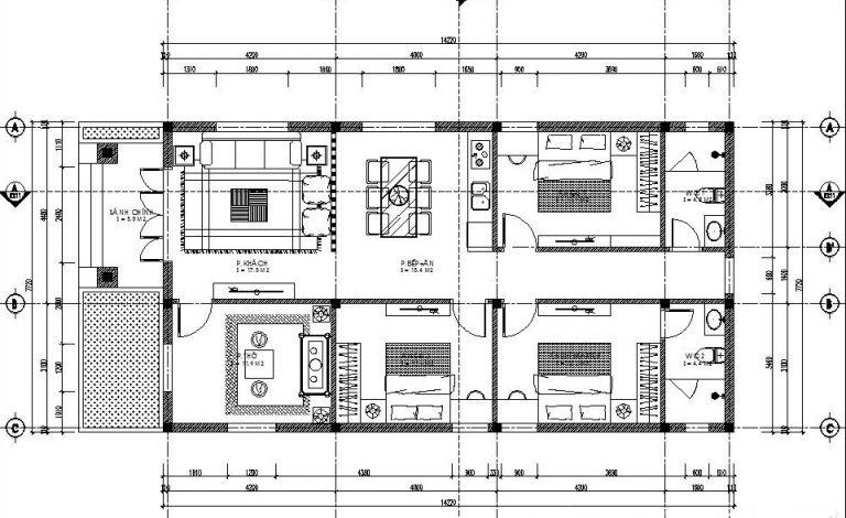
Bản vẽ mẫu nhà ống cấp 4.

Để căn nhà có thể phù hợp với nhiều phong cách, cần cân nhắc lựa chọn mái bằng hoặc mái thái.

Nhà ống cấp 4 với 3 phòng ngủ "cân cả thế giới".


Bản vẽ minh họa thiết kế nhà ống có 3 phòng ngủ.