Với chi phí xây dựng cực thấp, 15 mẫu nhà cấp 4 dưới 100 triệu dưới đây thực sự gây sốc bởi nó đảm bảo đầy đủ mọi công năng sử dụng lẫn tính thẩm mỹ cực cao.
Tuy chỉ với số tiền chưa đến 100 triệu nhưng các mẫu nhà đều sở hữu những thiết kế vô cùng thông minh và hiện đại.

Mấu số 1: Mẫu nhà cấp 4 dưới 100 triệu này được thiết kế theo phong cách hiện đại với phần mái lệch và cửa kính sang trọng.

Không gian được chia thành 2 phần với phần diện tích tầng trệt có 3 phòng chức năng chính là phòng khách, phòng ăn và phòng ngủ master. Ngoài ra, phần gác lửng sẽ được tận dụng là một phòng ngủ.

Mẫu số 2: Mẫu nhà cấp 4 mái bằng có thiết kế chứ L giúp tiết kiệm chi phí và tận dụng tối đa không gian bằng việc sử dụng các khối màu sáng tạo nên sự sang trọng, hiện đại.

Đây là mẫu nhà cấp 4 với thiết kế 3 phòng ngủ, 1 phòng khách và 1 phòng ăn vô cùng tiện lợi.

Mẫu số 3: Nhà cấp 4 mái bằng phù hợp với diện tích đất nhỏ và chi phí xây dựng cực thấp, chỉ dưới 400 triệu. Nhờ sử dụng tông màu xanh ghi và xanh navy khiến ngôi nhà trở nên sang trọng hơn.

Dù diện tích nhỏ nhưng mẫu nhà này vẫn được thiết kế với 2 phòng ngủ, 1 phòng khách và 1 phòng bếp kết hợp nhà vệ sinh nên vẫn đảm bảo sự tiện lợi cho gia chủ.

Mẫu số 4: Nhà mái thái chữ L với các cột trụ và mái hiên cũng được nhiều người ưa chuộng. Mẫu nhà cấp 4 dưới 100 triệu này thường được xây dựng trên diện tích đất rộng.

Mẫu số 5: Nhà mái ngói với phần buồng (nhà ngang) được xây dựng phổ biến ở vùng nông thôn bởi nó phù hợp với diện tích đất có chiều ngang rộng.

Mẫu số 6: Nhà mái ngói kết hợp với thiết kế hiện đại và sang trọng rất đáng xây trong năm 2019.

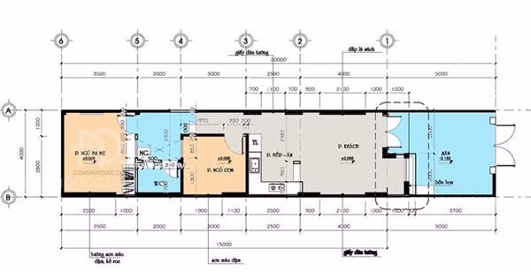
Mẫu số 7: Nhà 2 mặt tiền cũng được nhiều người ưa chuộng. Đây là mẫu nhà được thiết kế với 3 phòng ngủ, 1 phòng thờ, 1 phòng khách và 1 phòng bếp, 1 phòng sinh hoạt chung và 2 nhà vệ sinh.

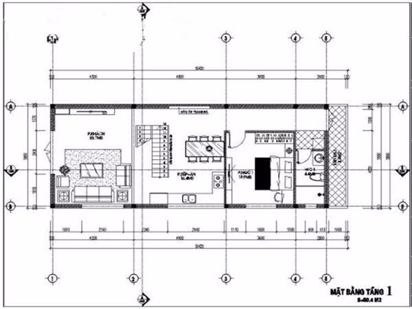
Mẫu số 8: Nhà mái bằng 1 tum nhận được đánh giá cao từ giới chuyên môn bởi nó có thiết kế vô cùng thông minh và hiện đại giúp tạo không gian sống lý tưởng cho người ở.

Đây là mẫu nhà phù hợp với gia đình ít người khi chỉ có 1 phòng ngủ, 1 phòng khách, 1 phòng bếp và khu sân phơi.

Mẫu số 9: Mẫu nhà 2 mái được thiết kế theo phong cách châu Âu với sân vườn rộng rãi được ưa chuộng ở cả thành thị và nông thôn.

Mẫu nhà này được thiết kế với 2 phù ngủ phù hợp với gia đình nhỏ có 4 người trở lại.

Mẫu số 10: Mẫu nhà mái bằng với chiều sâu dài được thiết kết với 3 phòng ngủ theo phong cách hiện đại cũng đang làm mưa làm gió trong giới kiến trúc.

Mẫu số 11: Nhà mái bằng với hành lang bên sườn kết hợp cửa kình vô cùng sang trọng. Dù diện tích nhỏ nhưng mẫu nhà này vẫn đảm bảo đầy đủ các công năng sử dụng.

Mẫu số 12: Mẫu nhà cấp 4 dưới 100 triệu được thiết kế mái thái kết hợp mái hiên nhỏ và cột trụ ở mặt tiền thực sự gây ấn tượng cho người nhìn.

Mẫu số 13: Mẫu nhà cấp 4 có mái tum và sân thượng. Đây là mẫu nhà cấp 4 dưới 100 triệu tận dụng tối đa được diện tích bởi phần mái tum có thể được thiết kế làm phòng thờ hoặc phòng ngủ con.
Phần sân thượng của mái tum có thể phơi đồ, trồng cây để tạo thành nơi giải trí cho mọi người trong gia đình.

Mẫu số 14: Nhà mái bằng kết hợp với mái chéo. Đây là mẫu nhà có kiến trúc độc đáo khi kết hợp 2 loại hình mái bằng và mái chéo tạo ấn tượng cho người nhìn.

Mẫu số 15: Mẫu nhà cấp 4 có không gian mở với cửa kính lùa kết hợp phong cách nội thất hiện đại. Mẫu nhà này phù hợp với người độc thân hoặc những đôi vợ chồng trẻ.
100 triệu là số tiền không nhiều để xây nhà, nhưng đủ để bạn có thể tạo nên tổ ấm cho riêng mình. Hy vọng với 15 mẫu nhà cấp 4 dưới 100 triệu trên đây sẽ giúp bạn lựa chọn được thiết kế ưng ý nhất!